Designed for the City of Miami, this project reimagines the community center as a multi-generational civic hub where recreation, wellness, education, and social life intersect. The complex integrates three multi-use recreational courts, fitness and exercise spaces, locker rooms, and a spa, alongside a flexible community center with classrooms and event spaces serving local residents. A dedicated senior wellness center—comprising activity rooms, therapy spaces, exercise areas, and social gathering zones—anchors the project’s commitment to inclusive, lifelong wellness. Rather than separating users by age or function, the architecture promotes visibility, shared circulation, and overlap, reinforcing the building as a unified public asset that responds directly to South Miami’s social and cultural needs.

GROUND FLOOR PLAN

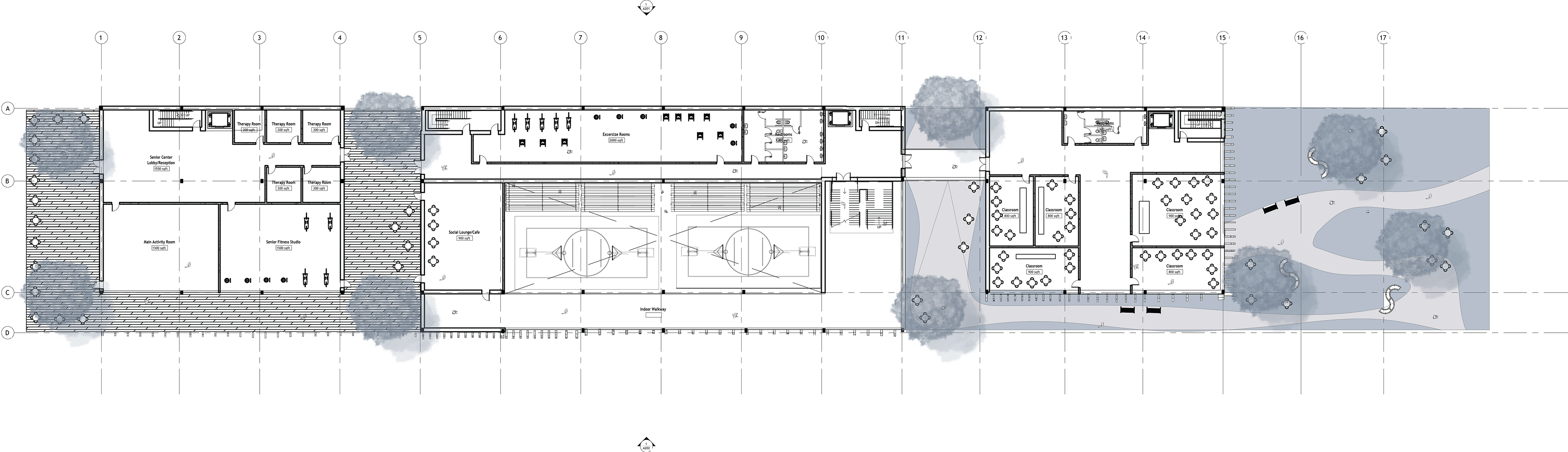
FIRST FLOOR PLAN
FIRST FLOOR PLAN
LONG SITE SECTION
LONG SITE SECTION
FULL SITE AXONOMETRIC
FULL SITE AXONOMETRIC
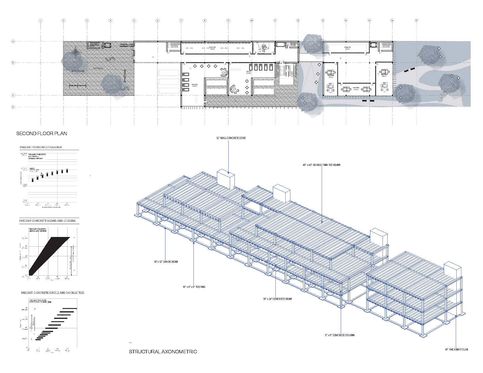
STRUCTURAL AXONOMETRIC
STRUCTURAL AXONOMETRIC

DETAILED WALL SECTION + CALLOUTS

Back to Top